自吸泵是用于泵送清水的泵類產品之一,假如在用于抽吸池塘或者井中的水時,請在自吸水泵管道的吸水口安裝一個可以防止沙粒或者其他異物進入的過濾網裝置,可以有效避免吸水口被堵住。下面對自吸泵吸水管路的安裝方法進行講解。
	1.吸水管道里水中含有溶解性氣體時,管道中壓力減小會使氣體溢出,假如在吸水管路某處出現積氣會形成氣囊,對管道的過水能力有影響。情況嚴重時會破壞真空吸水。為了確保水泵可以盡快排走吸水管路中的氣體,吸水管應該由沿水方向連續上升的坡度。便于管內的氣體從水泵入口處的泵殼頂端排出。
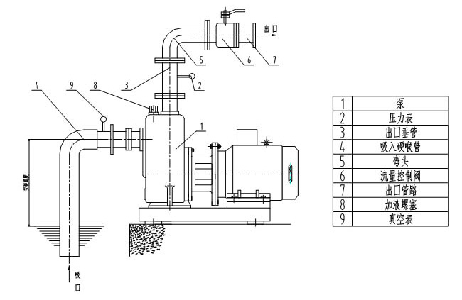
	2.為了保證自吸泵吸水管道沒有漏氣現象,吸水管道需要全部密封,一絲空氣都不可以被吸入,自吸泵吸水管路一般采用的是鋼管,接頭使用焊接或者法蘭方式連接。
	3.自吸泵吸水管的安裝和敷設應該防止在管道內形成氣囊。
	4.每臺自吸泵應該設置單獨的吸水管。吸水管的長度與管件應該盡量減少,以此來減少吸水管的水頭損失。假如自吸泵的數量在3臺或者3臺以上運行時,可以使用多臺水泵從公用吸水總管吸水,數量不能少于2條,1條出現問題時,其他吸水管依然可以通過設計水量。吸水總管上應該設置閘閥,便于切換與檢修。設置公用吸水管時,應該確保吸水管處處于正壓狀態。
	 
	5.吸水管安裝到吸水井內,吸水井的有效容積應該不低于較大一臺泵的五分鐘抽水量。為了避免吸水管進口處產生旋流吸入空氣。要求進口留有一定的淹沒深度、懸高與一定的間距。吸水管進口在吸水井中的具體尺寸要求是:
	①自吸泵進水管進口淹沒深度h≥0.5m~1m,否則應該設置水平隔板。水平隔板邊長是2D或者3D。
	②自吸泵進水管進口應該設置喇叭口,便于吸水管進口水流保持平穩,水力損失減少。
	③喇叭口下面距離井底間距懸高應該大于0.8D。
	④喇叭口之間的距離不能小于1.5D~2D。
	⑤喇叭口外緣和外壁距離不要小于0.75D~1D。
	6.水中含有大量雜質時,喇叭口下面應該設置過濾網。zx自吸泵為人工灌水或者利用壓力管道中的水灌泵啟動時。吸水管上應該設置底閥,底閥是止回閥的一種,設置過濾網時阻力較大。底閥有水上式和水下式兩種,水下式底閥安裝在吸水管的末端,水下式底閥易于損壞需要時常檢修,防止使用中帶來不便。一般多使用水上式底閥。上水式底閥使用時應該將吸水管水平段留有一定的長度,確保自吸泵充水啟動時管道中可以產生足夠的真空值。
	7.自吸泵吸水管設計流速一般是:吸水管直徑<250mm時,流速是1m/s~1.2m/s。吸水管直徑在250mm~1000mm時,流速是1.2m/s~1.6m/s。吸水管徑>1000mm時,流速是1.5m/s~2m/s。
	8.吸水池水位高于自吸泵軸線時,吸水管路上應該設置閘閥,便于自吸泵檢修。
	自吸泵吸水管路的安裝方法由自吸泵廠家總結。


 CZW型臥式管道增壓離心泵
CZW型臥式管道增壓離心泵 CHDF輕型臥式不銹鋼多級離心泵
CHDF輕型臥式不銹鋼多級離心泵 LG、LG-B型-多級立式不銹鋼礦用多級離心泵
LG、LG-B型-多級立式不銹鋼礦用多級離心泵
