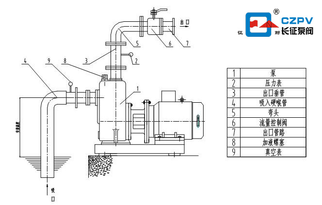
①自吸泵在安裝前,一定要確認好進口管道的長度和高度,不能超過自吸離心泵的允許吸程范圍。
	②耐腐蝕自吸泵在安裝時不能圖便宜,有的用戶在購買新的無密封自吸泵拿去使用時,直接把出廠固定無密封自控自吸泵的木條底座和自控自吸泵一起放在地面上投入使用,這種作法是不可取的。這樣很容易導致自吸泵發生振動以及噪音,致使塑料自吸泵發生機械故障。正確的方法是把氟塑料自吸泵底座固定在實心平整的平臺或者堅硬的地面上。
	 
	③不銹鋼自吸泵安裝時盡星不要固定在用糟鋼悍接的支架上,因為槽鋼與泵接觸的面太少,在緊固底座螺絲的同時由于泵底座有很大一部分是真空的,容易把底座及聯軸器同心度給破壞,所以裝在槽鋼支架上的塑料自吸泵是容易出現振動大,聯軸器很容易損壞的現象。
	④自吸泵在安裝時,應使泵及管路的靜電接地電阻達到其規定要求。
	⑤進口管道一定不能有漏氣的現象,應該保證是全密封的管道,就算有針眼大的小孔也將會影響不銹鋼自吸泵的自吸能力。
	⑥耐腐蝕自吸泵聯軸器必須用螺母堅固好,并鎖緊螺母,謹防螺母松動,否則易引起葉輪竄動,造成機械故障。
	 
	⑦在無密封自吸泵與電動機直聯傳動時,應注意泵軸與電動機輸出的同軸度;自控自吸泵安裝的準確與否,對無密封自控自吸泵的運行平穩性和使用壽命有較大的影響,必須仔細認真的安裝校正。
	⑧為了使自吸離心泵體內能夠保持一定的儲存液,以達到較好的自吸能力和防止機械密封的干磨擦,必須使自吸泵的進口高于泵軸的中心線。
	校正自吸泵聯軸器及電機動聯軸器的安裝間隙及同軸度,其不同軸度允許偏差為0.1mm。泵軸和電動機軸的高度差可在底腳上墊銅皮或鐵皮調整。
	⑩在機組實際運轉3-4小時后,然后檢查,如無不良現象,則主為安裝已妥,在試運轉中應檢查軸。
	?在自吸泵的出口管路上如裝有單向閥而在自吸過程中不能使泵順利地排出氣體時,應在泵的出口處加接排氣水管及閥。


 FB全不銹鋼單級單吸耐腐蝕離心泵
FB全不銹鋼單級單吸耐腐蝕離心泵 LG、LG-B型-多級立式不銹鋼礦用多級離心泵
LG、LG-B型-多級立式不銹鋼礦用多級離心泵 CZW型臥式管道增壓離心泵
CZW型臥式管道增壓離心泵
